Photos Walk to Soco Lounge Poolside at Modern Cool Spot
Austin
Situated in Austin, Walk to Soco Lounge Poolside at Modern Cool Spot features accommodation with private pool, free WiFi and free private parking for guests who drive. It is2.8 km from Shoal Beach and offers luggage storage space. The holiday home has a hot tub and a 24-hour front desk.
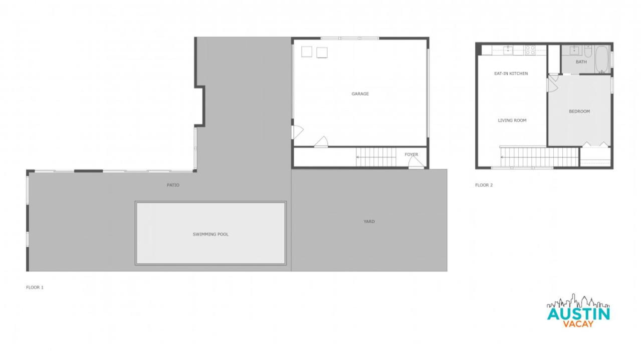
The air-conditioned holiday home consists of 1 bedroom, a living room, a fully equipped kitchen with a dishwasher and a kettle, and 1 bathroom with a bath and a hair dryer. Towels and bed linen are available in the holiday home. For added privacy, the accommodation features a private entrance.
Guests can relax in the garden at the property.
Austin Convention Center is 3.2 km from the holiday home, while Capitol Building is 4.6 km from the property. Austin-Bergstrom International Airport is 12 km away.
The hotel day starts from hour 15:00 and ends at 11:00.
Please note that while we strive to provide our guests with an enjoyable pool experience, the availability of the pool may be subject to unforeseen circumstances such as maintenance, cleaning, or other issues beyond our control. We prioritize the safety and satisfaction of our guests, and sometimes this means the pool may not be accessible during your stay. We appreciate your understanding and will do our best to ensure any impact on your stay is minimized.Guests are required to show a photo identification and credit card upon check-in. Please note thatSpecial Requests are subject to availability and additional charges may apply.
This property will not accommodate hen, stag or similar parties.
One-Bedroom House. This holiday homes standout feature is the private pool. Boasting a private entrance, this air-conditioned holiday home includes 1 living room, 1 separate bedroom and 1 bathroom with a bath and a shower. The fully equipped kitchen has a stovetop, a refrigerator, a dishwasher and kitchenware. The holiday home offers a washing machine, a tea and coffee maker, a dining area, tumble dryer, as well as a TV. The unit has 2 beds.
Additional information about the offer USA - Austin - Walk to Soco Lounge Poolside at Modern Cool Spot, opinions of holidaymakers as well as available dates can be found on the website our partner.
Book now
Offer from our partner: Booking.com BG.345531









