Photos Houseboat - Tiny House on Water - Adventure Floating Lake - HB03
Babbitt
Houseboat - Tiny House on Water - Adventure Floating Lake - HB03 is located in Babbitt. Free WiFi is available throughout the property.
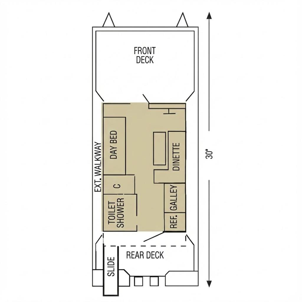
This holiday home comes with 1 bedroom, a kitchen with an oven and a microwave, a flat-screen TV, a seating area and 1 bathroom equipped with a shower. Towels and bed linen are provided in the holiday home. For added privacy, the accommodation features a private entrance.
Chisholm-Hibbing Airport is 96 km away.
The hotel day starts from hour 15:00 and ends at 11:00.
Guests are required to show a photo identification and credit card upon check-in. Please note thatSpecial Requests are subject to availability and additional charges may apply.
This property will not accommodate hen, stag or similar parties.
Please inform in advance of your expected arrival time. You can use the Special Requests box when booking, or contact the property directly with the contact details provided in your confirmation.
One-Bedroom House. Guests can make meals in the kitchen that is fitted with a stovetop, a refrigerator, kitchenware and an oven. The holiday home offers air conditioning, a washing machine, a private entrance, a seating area, as well as a flat-screen TV with streaming services. The unit offers 1 bed.
Additional information about the offer USA - Babbitt - Houseboat - Tiny House on Water - Adventure Floating Lake - HB03, opinions of holidaymakers as well as available dates can be found on the website our partner.
Book now
Offer from our partner: Booking.com BG.1895054





